Contact Jim Tacy
Schedule A Showing
1356 Cleveland Street, CLEARWATER, FL 33755
Priced at Only: $589,000
For more Information Call
Mobile: 352.279.4408
Address: 1356 Cleveland Street, CLEARWATER, FL 33755
Property Photos
Property Location and Similar Properties
- MLS#: TB8456272 ( Commercial Sale )
- Street Address: 1356 Cleveland Street
- Viewed: 6
- Price: $589,000
- Price sqft: $400
- Waterfront: No
- Year Built: 1958
- Bldg sqft: 1474
- Days On Market: 13
- Additional Information
- Geolocation: 27.9659 / -82.7809
- County: PINELLAS
- City: CLEARWATER
- Zipcode: 33755
- Subdivision: Overbrook

- DMCA Notice
-
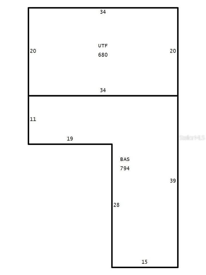
DescriptionFREESTANDING BLOCK COMMERCIAL PROPERTY with OWNER FINANCING AVAILABLE in an area of Clearwater that the City recently updated. This is your opportunity to purchase an exclusive commercial building in the new Gateway to Downtown Clearwater in a Commercial Flexible Zone which affords you the possibility to host multiple businesses. The building is surrounded by brand new beautiful landscaping, with new roads, paved sidewalks and your own 7 spot parking lot in the heart of Clearwater. BUILDING FEATURES 1,474 sqft of raw gallery and warehouse space to make it whatever you want Insulated block walls and ceiling Newer AC units 2 Bathrooms (building has 2 halves) Overhead industrial door on the side 7 parking spots Flexible zoning for almost any business Cool, heavy duty, retail windows and door in the front of the building will draw your guests into your cool new space. Once inside the high ceilings give you all plenty of open space to create and display your artwork, of add some cool new lighting to create the perfect environment to leave your guests in awe. The current gallery area, up front, also hosts newer drywall giving it that clean fresh look. Sale is negotiable. Proof of downpayment funds will be required for owner financing. Please do not attempt to enter the building it is currently occupied.
Features
Home Owners Association Fee
- 0.00
Carport Spaces
- 0.00
Close Date
- 0000-00-00
Cooling
- Central Air
Country
- US
Covered Spaces
- 0.00
Flooring
- Epoxy
Garage Spaces
- 0.00
Heating
- Central
Insurance Expense
- 0.00
Legal Description
- OVERBROOK BLK 2
- E 20FT OF LOT 15 & ALL OF LOT 16
Living Area
- 1474.00
Area Major
- 33755 - Clearwater
Net Operating Income
- 0.00
Open Parking Spaces
- 0.00
Other Expense
- 0.00
Parcel Number
- 15-29-15-64890-002-0160
Property Type
- Commercial Sale
Road Frontage Type
- City Street
Sewer
- Public Sewer
Tax Year
- 2024
Township
- 29
Utilities
- Public
Virtual Tour Url
- https://www.propertypanorama.com/instaview/stellar/TB8456272
Water Source
- Public
Year Built
- 1958
- Jim Tacy, Broker
- Tropic Shores Realty
- Mobile: 352.279.4408
- Office: 352.556.4875
- tropicshoresrealty@gmail.com












